装修案例
装修案例
设计提案
工地展示
搜索
0577-86069777
智能健康家装热线
首页
楼盘
案例
实景案例
全景案例
报价
设计范围
半包范围
全包范围
配套套餐
空间版预算
自助报价
优惠活动
设计
设计师
装修需求
设计风格
行业前沿
设计提案
施工
项目经理
施工工人
工地展示
工艺标准
辅材介绍
主材介绍
公司
关于云鸿
公司动态
联系我们
自助报价
首页
楼盘
案例
实景案例
全景案例
报价
设计范围
半包范围
全包范围
配套套餐
空间版预算
自助报价
优惠活动
设计
设计师
装修需求
设计风格
行业前沿
设计提案
施工
项目经理
施工工人
工地展示
工艺标准
辅材介绍
主材介绍
公司
关于云鸿
公司动态
联系我们
您当前位置
>
设计提案
>
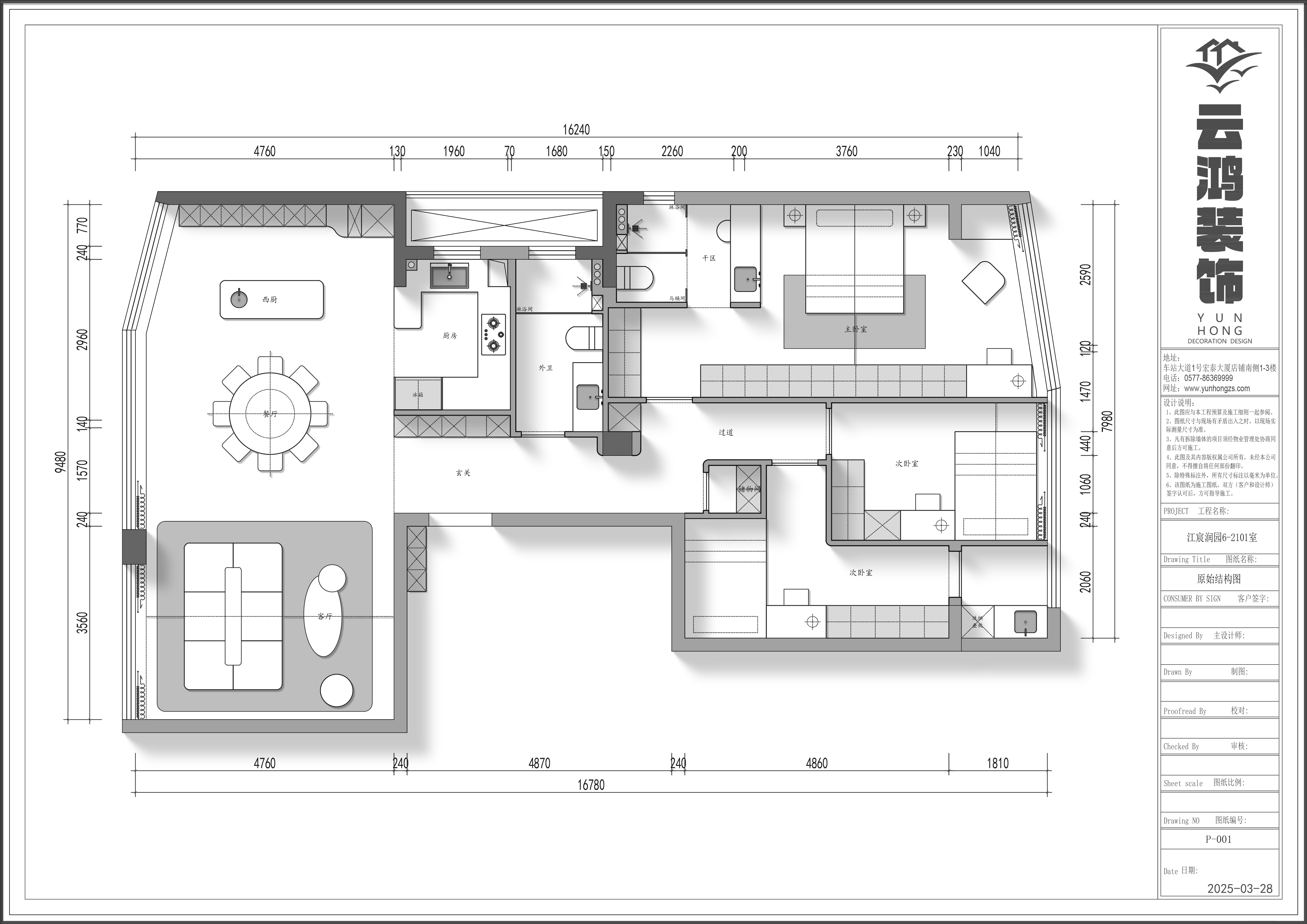
江宸润园 6-2101
江宸润园 6-2101
DESIGNER
郑辉洋
作品数:
16
套
从业时间:
5年
擅长风格:现代简约、现代奶油风、现代原木风、现代
实景案例
16套
360°案例
2套
在建工地
0套
好评率
100%
个人简介
【代表作品】:外滩首府,滨江首府,滨江九里,万象公馆,国宾- -号,公园天下,白麓城,欧洲城,香缇半岛,铂金府邸,金域传奇,温州大公馆,御珑湾,新田园,军千大厦,锦东家园,金色公馆,清晖园,滨瓯景园,华鸿中央公园,瑞士花园,壹品国际等。
点击展开
找TA设计
原始户型
#ff0000
设计方案
#ff0000
#ff0000
实景/参考图
全景效果图
设计师关联案例
鱼鳞锦苑60㎡户型案例
预约Ta
设计师:郑辉洋
查看案例详情>>
新塘东苑12-1803
预约Ta
设计师:郑辉洋
查看案例详情>>
和美佳苑8-1306
预约Ta
设计师:郑辉洋
查看案例详情>>
景屿嘉园5-304
预约Ta
设计师:郑辉洋
查看案例详情>>
星屿海1-1401
预约Ta
设计师:郑辉洋
查看案例详情>>
怡河佳苑4-1601
预约Ta
设计师:郑辉洋
查看案例详情>>
麓雅苑2-2101
预约Ta
设计师:郑辉洋
查看案例详情>>
东润华庭3栋1702
预约Ta
设计师:郑辉洋
查看案例详情>>
保利大国璟 13-2702
预约Ta
设计师:郑辉洋
查看案例详情>>
在线客服
客服微信
自助报价
优惠政策
返回顶部