您当前位置 > 设计提案 > 鱼鳞锦园

鱼鳞锦园

周世杰

DESIGNER

周世杰

作品数:2从业时间:3年

擅长风格:新中式、现代轻奢、现代极简

实景案例

2套

360°案例

0套

在建工地

0套

好评率

100%
个人简介
【代表作品】:上海特斯拉工厂二期 温州鞋都东方安娜办公展厅 温州茶山山边咖啡吧
温州鹿城区党建文化宣传中心 温州金鹏酒店 新疆游客服务中心 未来城壹号 蔻天赋
江屿云庄
点击展开
找TA设计

设计方案

90

90

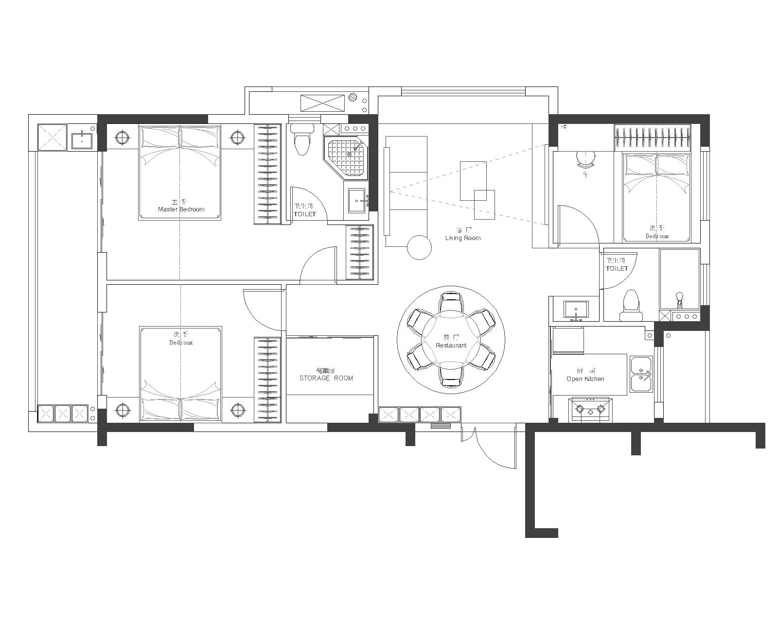
弧形方正采光良好更适合年轻人的家居空间

90

90

户型方正高性价比

90
90

实景/参考图

90

90

90

90

90

90

90

90

90

90

90

90

90

90

90

90

90

90

90

90

90

90

90

90

90

90

90

90

90

90

90

90

90

90

90

90

90

90

90
90
90
90
90
90
90
90
90
90
90
90
90
90
90
90
90
90
90

全景效果图

设计师关联案例

在线客服

客服微信

自助报价

优惠政策

返回顶部