您当前位置 > 设计提案 > 嘉岙大厦903

嘉岙大厦903

面积:110

詹豪凯

DESIGNER

詹豪凯

作品数:17从业时间:6年

擅长风格:现代原木风、现代轻奢、简欧、简中式、意式风

实景案例

17套

360°案例

0套

在建工地

0套

好评率

100%
个人简介
【代表作品】:华润悦未来,香开万里
点击展开
找TA设计

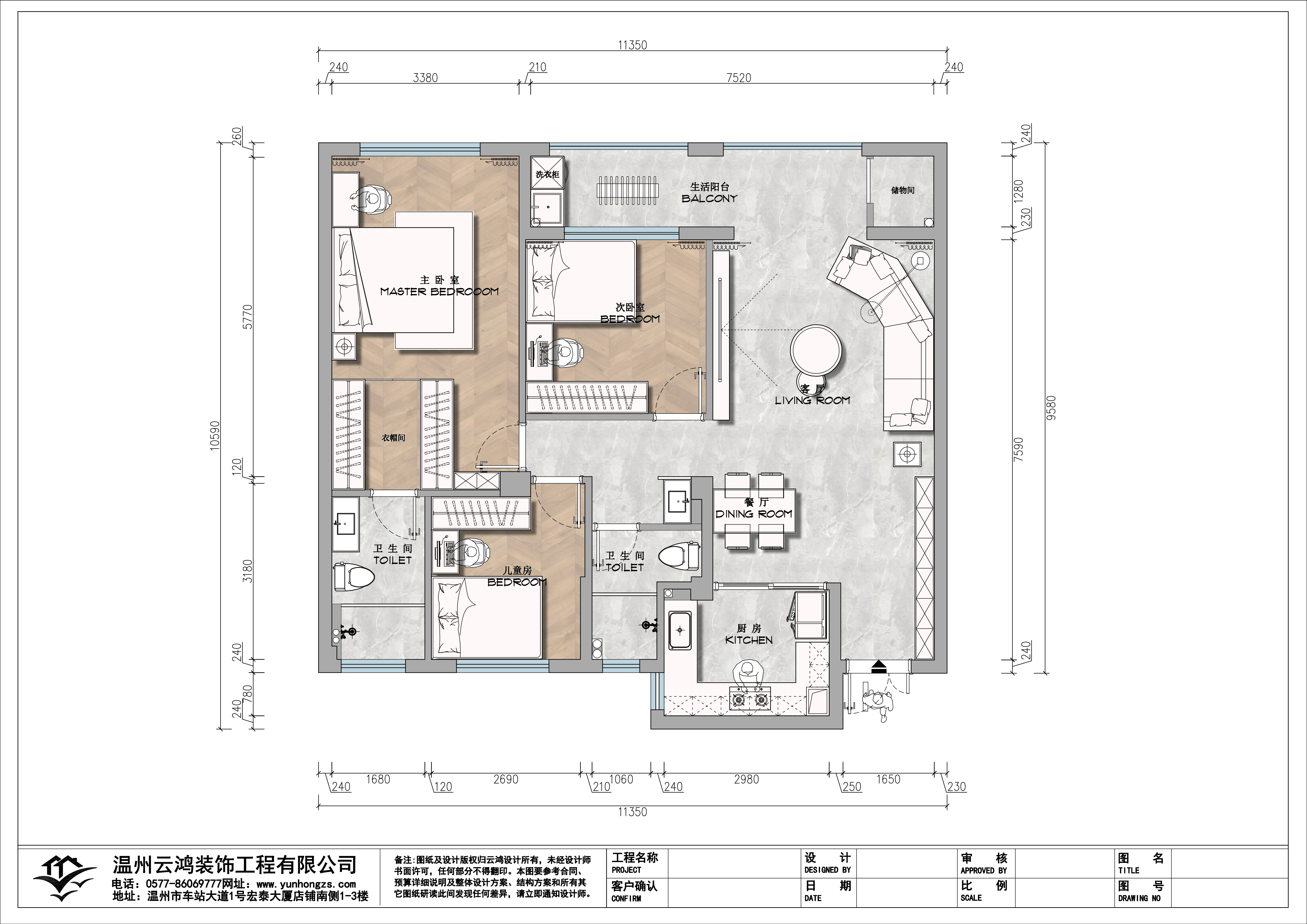
原始户型

#ff0000

#ff0000

#ff0000

设计方案

#ff0000

#ff0000

#ff0000

#ff0000

#ff0000
#ff0000

实景/参考图

全景效果图

在线客服

客服微信

自助报价

优惠政策

返回顶部