您当前位置 > 设计提案 > 后江锦苑7幢2204室

后江锦苑7幢2204室

风格:极简风格面积:115平造价:20万

邵鲁斌

DESIGNER

邵鲁斌

作品数:169从业时间:11年

擅长风格:

实景案例

155套

360°案例

30套

在建工地

14套

好评率

100%
个人简介
擅长风格】:现代轻奢、新中式、现代美式、简欧、极简、法式
【曾获荣誉】:中国建筑装饰协会高级(住宅)室内设计师
温州市优秀青年建筑装饰设计师
【代表作品】:外滩首府,滨江首府,滨江九里,万象公馆,国宾一号,公园天下,白麓城,欧洲城,香缇半岛,铂金府邸,金域传奇,温州大公馆,御珑湾,新田园,军干大厦,锦东家园,金色公馆,清晖园,滨瓯景园,华鸿中央公园,瑞士花园,壹品国际等。
点击展开
找TA设计

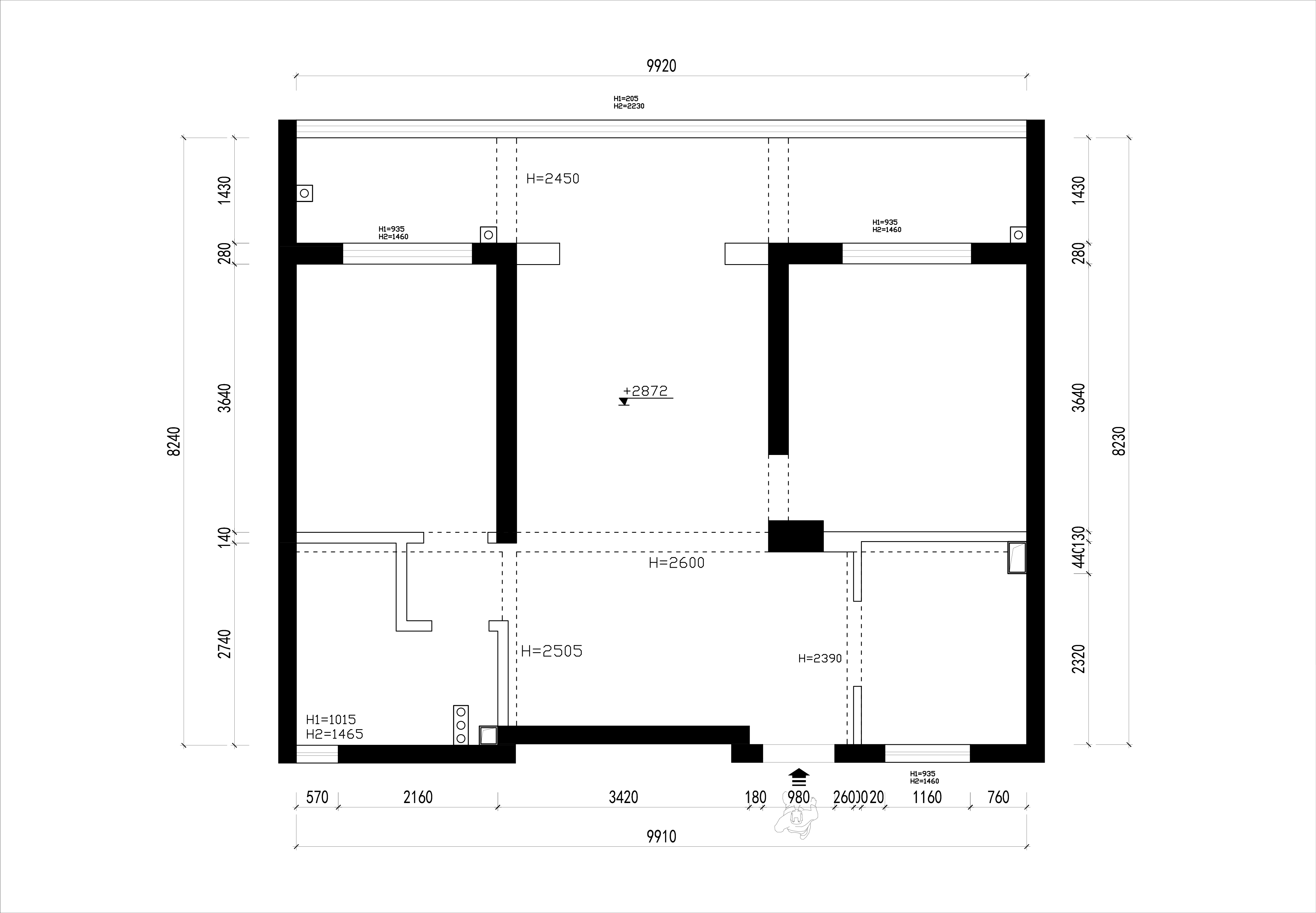
原始户型

原始框架图

原始框架图

父母房原始框架图

父母房原始框架图

原始框架图
父母房原始框架图

设计方案

方案一

方案一

方案二

方案二

父母房方案

父母房方案

方案一
方案二
父母房方案

实景/参考图

全景效果图

设计师关联案例

鹿城区香丽园6幢2306室

鹿城区香丽园6幢2306室

风格:极简风格

面积:115平

造价:23.5万

查看案例详情>>
汇宁住宅区9幢704室

汇宁住宅区9幢704室

风格:极简风格

面积:180平

造价:40万

查看案例详情>>
鹿城区香丽园4幢1204室

鹿城区香丽园4幢1204室

风格:极简风格

面积:95平

造价:20万

查看案例详情>>
府东家园12幢1101室

府东家园12幢1101室

风格:极简风格

面积:130平

造价:28万

查看案例详情>>
铂金湾12幢1102室

铂金湾12幢1102室

风格:极简风格

面积:140平

造价:40万

查看案例详情>>
中园大厦A-702室

中园大厦A-702室

风格:极简风格

面积:166平

造价:45万

查看案例详情>>
慈湖锦苑2组团7幢301室

慈湖锦苑2组团7幢301室

风格:极简风格

面积:115平

造价:17万

查看案例详情>>
塘河上品1幢1506室1

塘河上品1幢1506室1

风格:极简风格

面积:120

造价:25万

查看案例详情>>
西泰佳苑4幢201室

西泰佳苑4幢201室

风格:极简风格

面积:140平

造价:30万

查看案例详情>>

在线客服

客服微信

自助报价

优惠政策

返回顶部