装修案例
装修案例
设计提案
工地展示
搜索
0577-86069777
智能健康家装热线
首页
楼盘
案例
实景案例
全景案例
报价
设计范围
半包范围
全包范围
配套套餐
空间版预算
自助报价
优惠活动
设计
设计师
装修需求
设计风格
行业前沿
设计提案
施工
项目经理
施工工人
工地展示
工艺标准
辅材介绍
主材介绍
公司
关于云鸿
公司动态
联系我们
自助报价
首页
楼盘
案例
实景案例
全景案例
报价
设计范围
半包范围
全包范围
配套套餐
空间版预算
自助报价
优惠活动
设计
设计师
装修需求
设计风格
行业前沿
设计提案
施工
项目经理
施工工人
工地展示
工艺标准
辅材介绍
主材介绍
公司
关于云鸿
公司动态
联系我们
您当前位置
>
设计提案
>
清华上城9-2504
清华上城9-2504
DESIGNER
钱月石
作品数:
23
套
从业时间:
10年
擅长风格:现代简约、现代、新中式、简欧、现代极简
实景案例
23套
360°案例
8套
在建工地
0套
好评率
100%
个人简介
【曾获荣誉】:全国高新专业人才室内外装饰设计师【代表作品】:瓯越公馆,聚欢家园,横渡绣苑,金色嘉园,九山佳园,欧洲城,滨瓯景园,望宸里,金茂府,德政嘉园,银来花苑,旸诚锦园,方正大厦,玉锦麟,郭景家园,华侨城,新田园,府东家园,锦东家园,宏博苑,霞庭湾,阿尔勒等。
点击展开
找TA设计
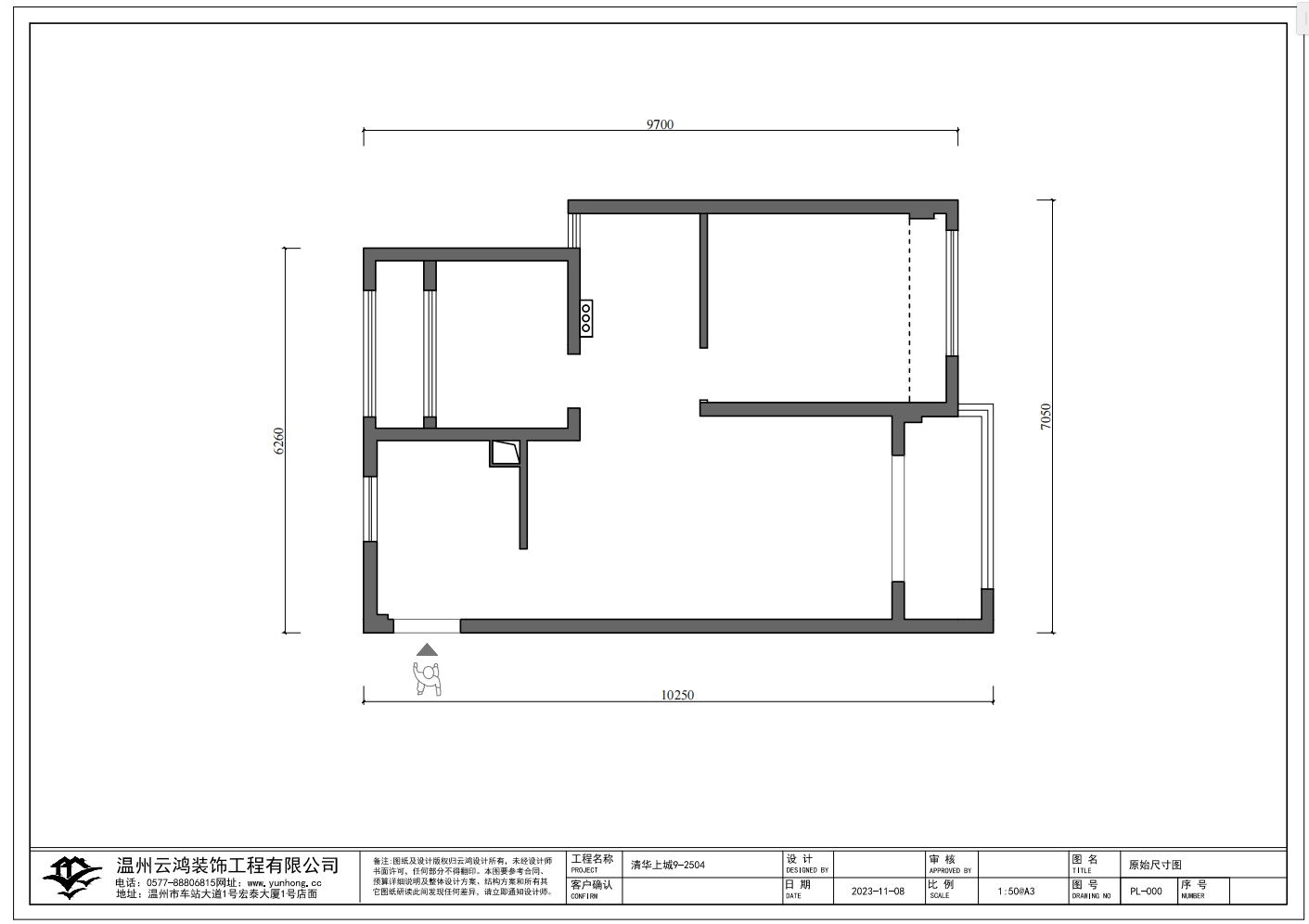
原始户型
原始户型
设计方案
方案一
方案二
实景/参考图
全景效果图
设计师关联案例
甲里家园4-2104
预约Ta
设计师:钱月石
查看案例详情>>
新国光大厦E-21A
预约Ta
设计师:钱月石
查看案例详情>>
未来旭辉城11-1502
预约Ta
设计师:钱月石
查看案例详情>>
江屿云庄20-1501
预约Ta
设计师:钱月石
查看案例详情>>
玫瑰园38-304
预约Ta
设计师:钱月石
查看案例详情>>
状元府1-704
预约Ta
设计师:钱月石
查看案例详情>>
天盛花园4-306
预约Ta
设计师:钱月石
查看案例详情>>
南塘三组团12-101
预约Ta
设计师:钱月石
查看案例详情>>
清华上城11-1203
预约Ta
设计师:钱月石
查看案例详情>>
在线客服
客服微信
自助报价
优惠政策
返回顶部