您当前位置 > 设计提案 > 东方大厦-1707黄女士雅居

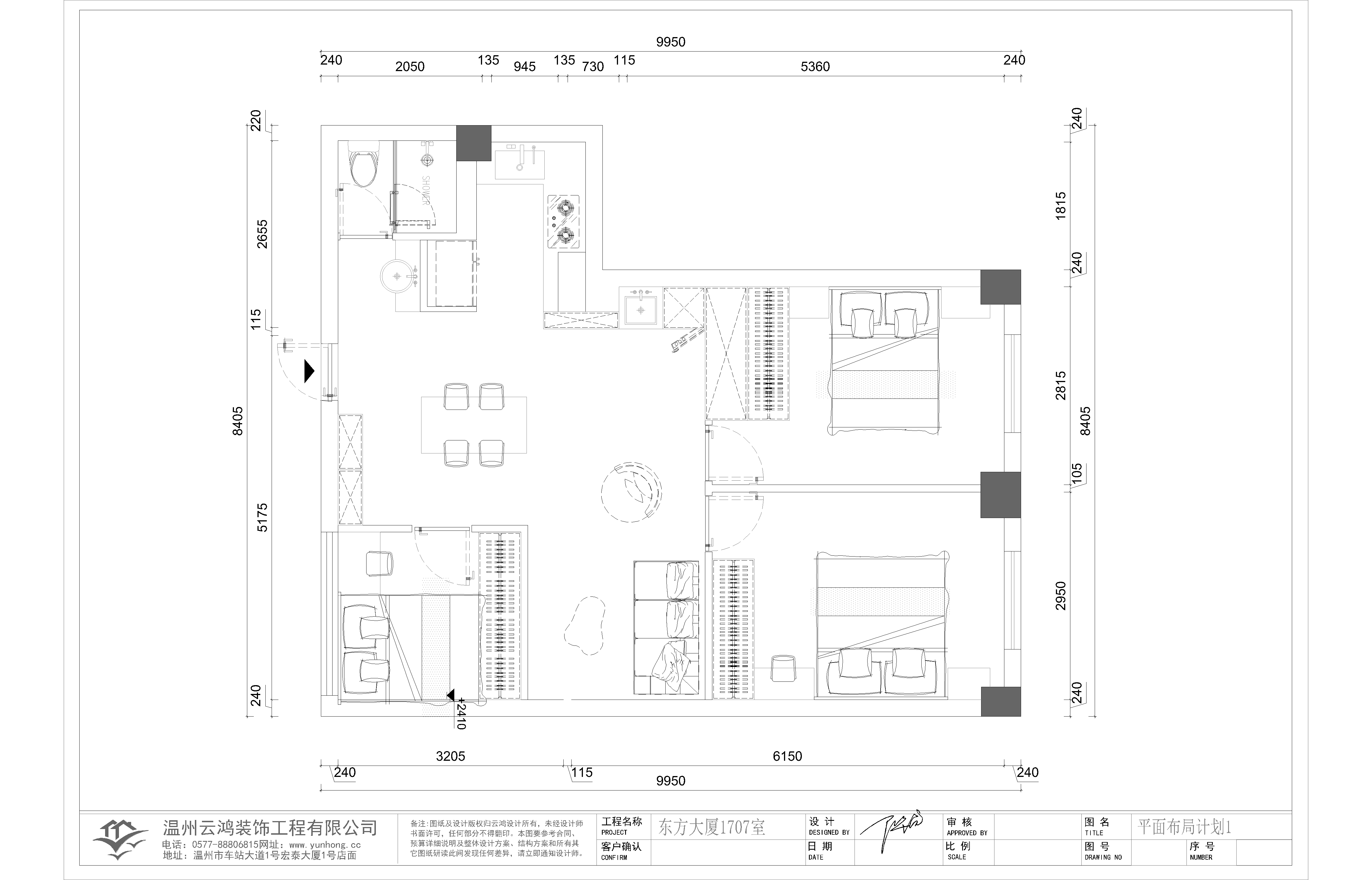
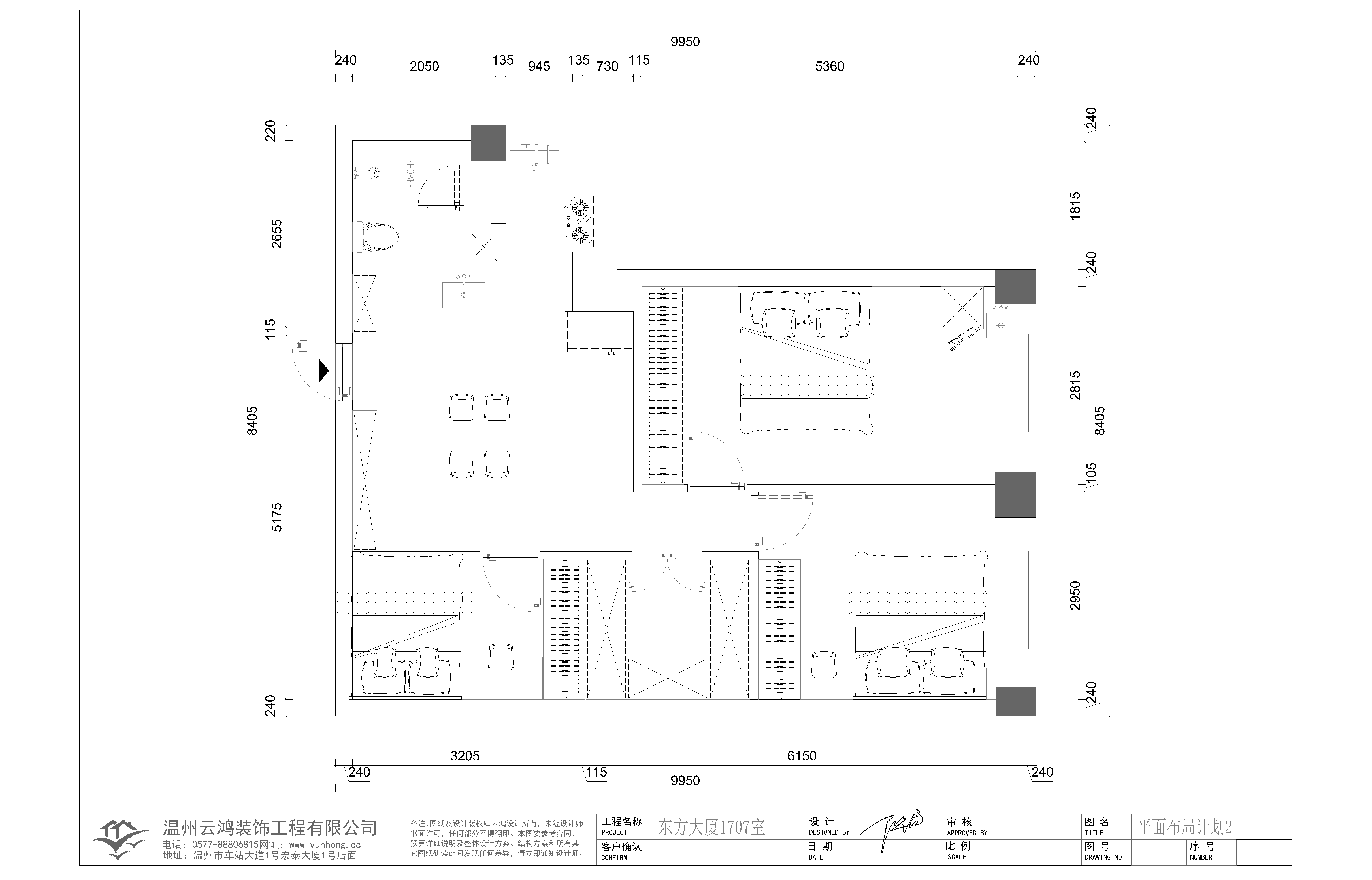
东方大厦-1707黄女士雅居

面积:88造价:100000

陈星亮

DESIGNER

陈星亮

作品数:37从业时间:5年

擅长风格:现代简约、新中式、现代轻奢、现代美式、简欧

实景案例

37套

360°案例

0套

在建工地

0套

好评率

100%
个人简介
【擅长风格】:现代简约,现代轻奢、新中式、现代美式、简欧、极简
【代表作品】:华鸿·中央湖公馆,潮启·西湖四季,大国璟,江屿云庄,鹿城中心,横渡绣苑,德政嘉园,西山嘉园,辽望大厦,吕家岸锦园,香丽园,丽水-万洋博尔达,南昌-中梁·建发·祥云悦府 等。
点击展开
找TA设计

原始户型

#ff0000

#ff0000

#ff0000

设计方案

#ff0000

#ff0000

#ff0000

#ff0000

#ff0000

#ff0000

#ff0000

#ff0000

#ff0000

#ff0000

#ff0000

#ff0000

#ff0000

#ff0000

#ff0000

#ff0000

#ff0000

#ff0000

#ff0000

#ff0000

#ff0000

#ff0000

#ff0000

#ff0000

#ff0000
#ff0000
#ff0000
#ff0000
#ff0000
#ff0000
#ff0000
#ff0000
#ff0000
#ff0000
#ff0000
#ff0000

实景/参考图

全景效果图

设计师关联案例

瑧悦府戴女士雅居

瑧悦府戴女士雅居

面积:80

查看案例详情>>
东方大厦-1707黄女士雅居

东方大厦-1707黄女士雅居

面积:88

造价:100000

查看案例详情>>
望金佳苑3-204

望金佳苑3-204

风格:现代简约

面积:128

查看案例详情>>
沙门锦园4-1502夏女士雅居

沙门锦园4-1502夏女士雅居

面积:64

查看案例详情>>
臻鸿华庭9-601张先生雅居

臻鸿华庭9-601张先生雅居

面积:120

查看案例详情>>
观澜苑22-1401杨女士雅居

观澜苑22-1401杨女士雅居

面积:70

查看案例详情>>
新田园二组团15-203黄先生雅居

新田园二组团15-203黄先生雅居

风格:现代简约

查看案例详情>>

在线客服

客服微信

自助报价

优惠政策

返回顶部