您当前位置 > 设计提案 > 霞庭湾1-1706

霞庭湾1-1706

计伟丹

DESIGNER

计伟丹

作品数:37从业时间:12年

擅长风格:现代简约、现代、现代轻奢

实景案例

37套

360°案例

0套

在建工地

0套

好评率

100%
个人简介
【曾获荣誉】: 中国装饰协会会员
温州装饰协会会员
温州房地产协会会员
国家注册室内设计师 
中国CIID装饰协会会员
【代表作品】:立体城悦江台、中梁首府、尚品半岛、大自然滨江、瓯海之光、现代锦华城、恒达铂金湾、万科金域中央、四季原著、大发融悦东方、大诚金廷、德信海派公馆、中梁滨江九里、华润万象城、瓯越公馆、同人欣园、香滨左岸、鸿旭家园、万家利锦园、永嘉自建别墅等。
点击展开
找TA设计

原始户型

原始框架图

原始框架图

优:户型方正,收纳足够。劣:入户一镜到底,没有隐私。

原始框架图

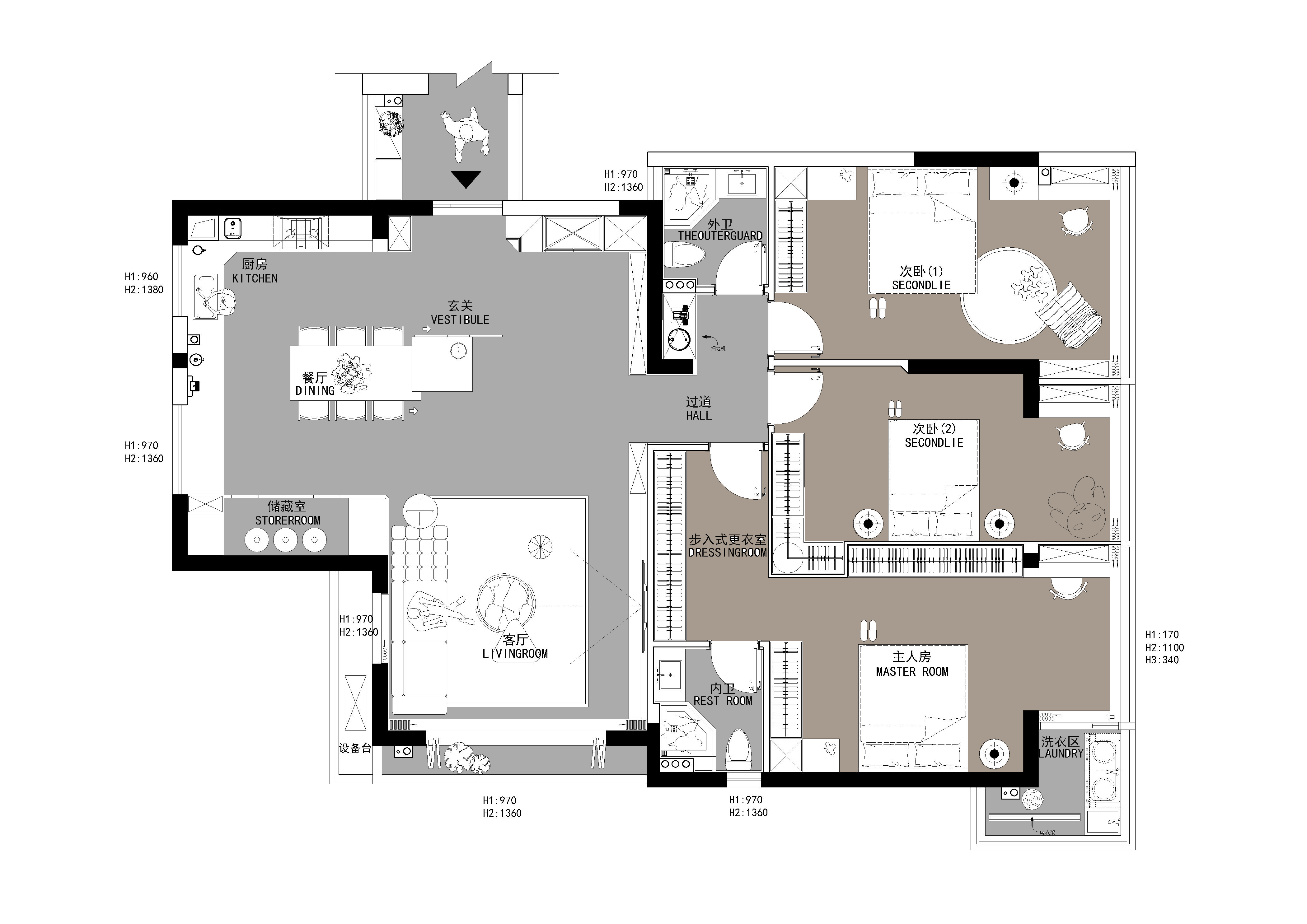
设计方案

方案一

方案一

方案二

方案二

方案三

方案三

方案四

方案四

方案一
方案二
方案三
方案四

实景/参考图

全景效果图

在线客服

客服微信

自助报价

优惠政策

返回顶部