您当前位置 > 设计提案 > 霞庭湾 蔡女士雅居

霞庭湾 蔡女士雅居

风格:现代面积:91造价:15w

章鹏豪

DESIGNER

章鹏豪

作品数:58从业时间:5年

擅长风格:现代简约、现代、现代轻奢、北欧、现代极简

实景案例

58套

360°案例

13套

在建工地

0套

好评率

100%
个人简介
毕业院校:浙江工业职业技术学院
【擅长风格】:现代、轻奢、新中式、北欧、极简【代表作品】:龙湖天曜城,碧桂园珑悦,万象天地,中央湖公馆,华鸿万府,博悦湾,金茂府,瓯越名邸,新希望天麓,学院十一峯,翡翠天地,温州悦府,保利天悦,温州一号,江心明月,大发都会道,中央公园
点击展开
找TA设计

原始户型

原始户型

原始户型

整体比较通透,厨房跟餐厅的位置比较小,卫生间有点不规整

原始户型

设计方案

方案一

方案一

业主需要两个马桶,冰箱放在厨房里,操作台面比较小,两个儿子都要书桌

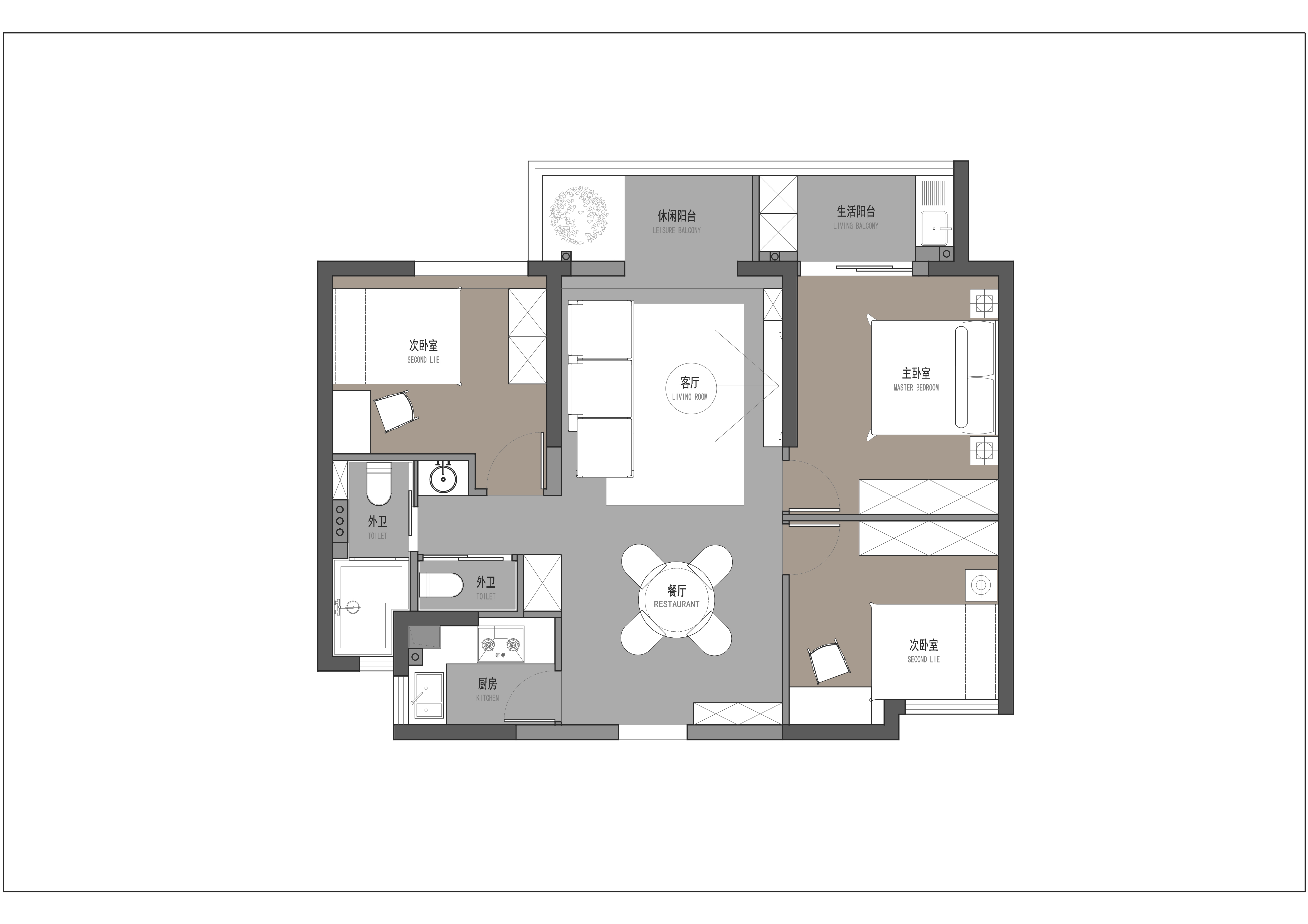
方案二

方案二

餐厅改大了一些。冰箱放在了外面,餐桌换成了圆桌

#ff0000

#ff0000

#ff0000

#ff0000

方案一
方案二
#ff0000
#ff0000

实景/参考图

全景效果图

设计师关联案例

宏地-壹品国际 戴女士雅居

宏地-壹品国际 戴女士雅居

风格:现代

面积:85

造价:13w

查看案例详情>>
延川胜景戴女士雅居

延川胜景戴女士雅居

风格:现代

面积:92

造价:14w

查看案例详情>>
凯鸿华府姜先生雅居

凯鸿华府姜先生雅居

风格:现代

面积:99

造价:15w

查看案例详情>>
罗西住宅区李先生雅居

罗西住宅区李先生雅居

风格:北欧

面积:140

造价:11w

查看案例详情>>
万和嘉园任女士雅居

万和嘉园任女士雅居

风格:北欧

面积:135

造价:10

查看案例详情>>
阳光一百李先生雅居

阳光一百李先生雅居

风格:现代

面积:99

造价:8w

查看案例详情>>
阳光一百李先生雅居

阳光一百李先生雅居

风格:现代

面积:99

造价:8w

查看案例详情>>
方达嘉园郑先生雅居

方达嘉园郑先生雅居

风格:现代

面积:100

造价:10w

查看案例详情>>
中央花苑谢女士雅居

中央花苑谢女士雅居

风格:现代

面积:120

造价:9w

查看案例详情>>

在线客服

客服微信

自助报价

优惠政策

返回顶部