您当前位置 > 设计提案 > 西汇锦园5-2301

西汇锦园5-2301

面积:113

王益振

DESIGNER

王益振

作品数:226从业时间:10年

擅长风格:现代、日式、北欧、欧式、中式

实景案例

201套

360°案例

35套

在建工地

25套

好评率

100%
个人简介
毕业院校:湖州职业技术学院
国家高级注册设计师
中国室内设计协会会员
温州云鸿装饰主任设计师
设计感悟:让灵感自由释放,创造一个心灵渴望的空间
设计案例:香缇公馆 同人欣园 同人花园 尚品半岛 龙湾首府 白麓城香颂院 白麓城荣御府 白麓城馨雅苑 南盛景园 南塘二组团
荣誉奖励
2016年 “大金杯”室内设计大赛
2017年被评为温州市优秀青年建筑装饰设计师
2018年 “大金杯”室内设计大赛
点击展开
找TA设计

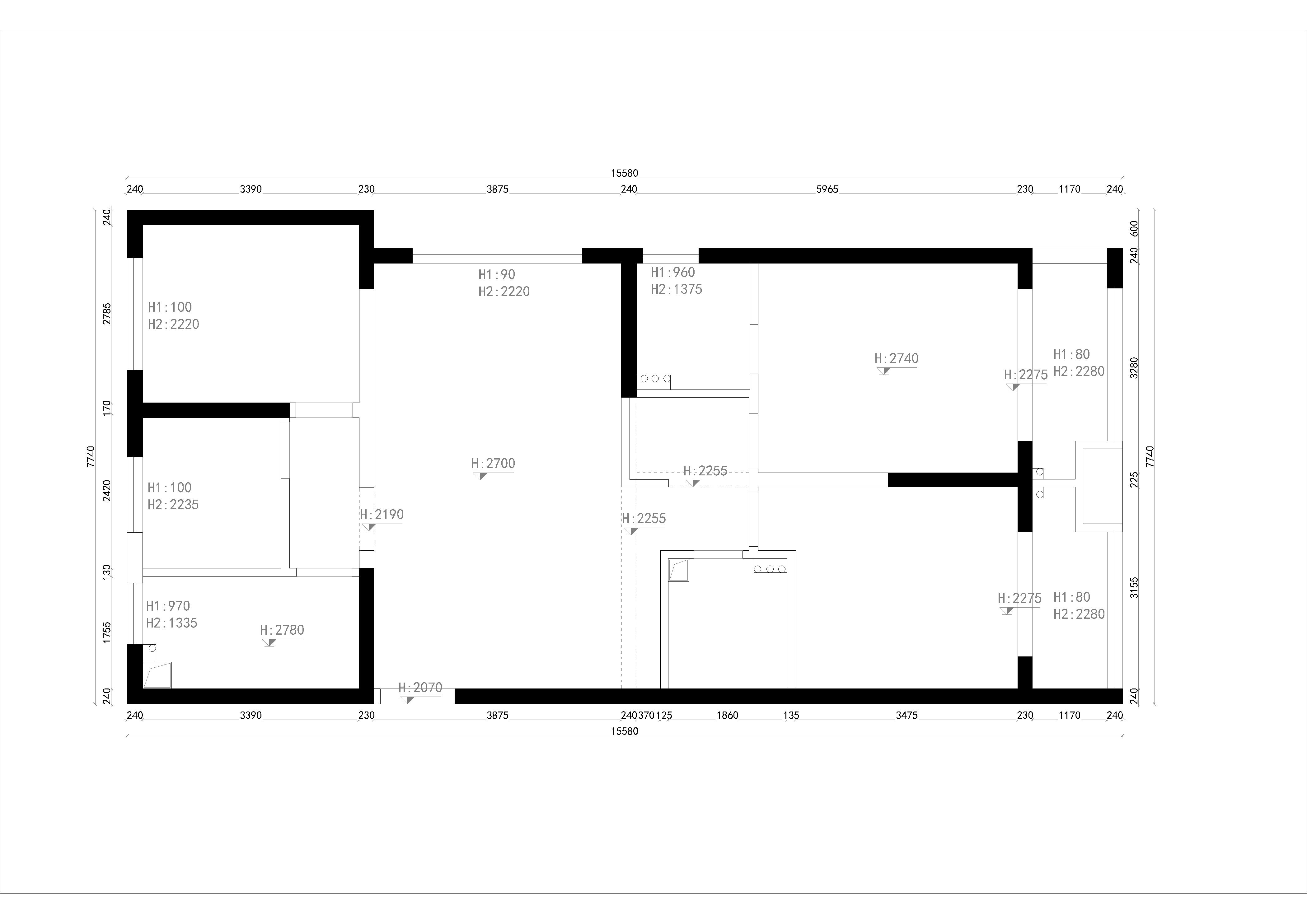
原始户型

原始框架图

原始框架图

原始框架图

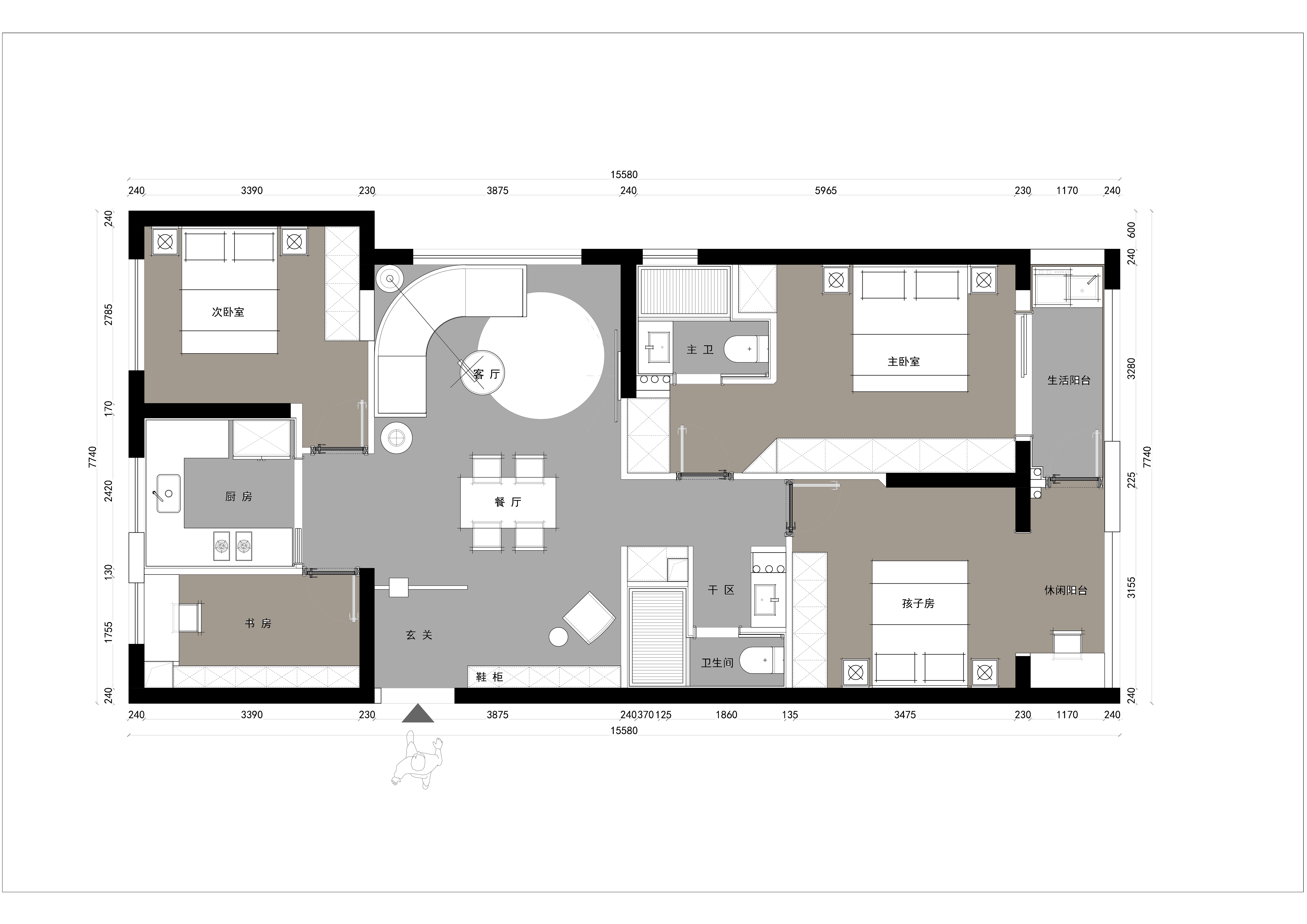
设计方案

方案一

方案一

方案二

方案二

方案三

方案三

方案一
方案二
方案三

实景/参考图

客厅

客厅

餐厅

餐厅

卧室

卧室

方案一

方案一

方案二

方案二

方案三

方案三

客厅
餐厅
卧室
方案一
方案二
方案三

全景效果图

在线客服

客服微信

自助报价

优惠政策

返回顶部