您当前位置 > 设计提案 > 德政嘉苑 2-01户型

德政嘉苑 2-01户型

风格:现代面积:150造价:25万

戴世铭

DESIGNER

戴世铭

作品数:56从业时间:5年

擅长风格:

实景案例

44套

360°案例

19套

在建工地

12套

好评率

100%
个人简介
从业经验:5年
毕业院校:景德镇学院-陶瓷美术与设计艺术学院
【设计理念】:贴近生活 追求自然 自然融入空间 空间融入生活
【擅长风格】:现代、极简、轻奢、现代美式、现代法式、诧寂、复古、
【代表作品】:中梁首府,白麓城,铂金府邸,温州悦府,尚品半岛,新希望天麓,鹿岛甲第,温州望府,湖滨一号,华鸿万府,新希望立体城,玖号院,时代公园,首府壹号院,万科新都会,祥生睿城,祥生尚品,TOD国际新城,海派公馆,金轩嘉园,强强锦园,洞头碧海云天等。
点击展开
找TA设计

原始户型

原始结构图

原始结构图

户型方正,格局分区明确。

原始结构图

设计方案

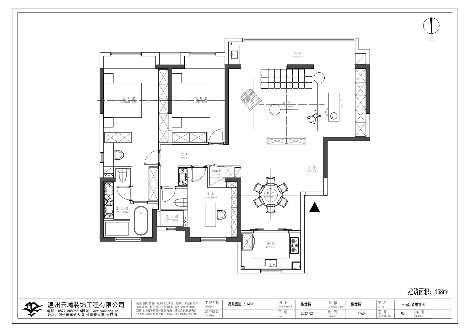
平面功能布置图 方案一

平面功能布置图 方案一

主卧与北卧室形成套房形式,原过道上移,增加干区空间与储藏室空间。

平面功能布置图 方案二

平面功能布置图 方案二

内卫往衣帽间移,形成含有浴缸与双台盆的卫生间。

平面功能布置图 方案一
平面功能布置图 方案二

实景/参考图

参考图一

参考图一

参考图二

参考图二

参考图三

参考图三

参考图四

参考图四

参考图一
参考图二
参考图三
参考图四

全景效果图

设计师关联案例

海派公馆1-1704 陈先生雅居

海派公馆1-1704 陈先生雅居

风格:欧式风格

面积:123M²

造价:10万

查看案例详情>>
金海首府6幢04 王姐

金海首府6幢04 王姐

风格:新中式风格

面积:110M²

造价:

查看案例详情>>
白麓城6-04徐女士雅居

白麓城6-04徐女士雅居

风格:新中式风格

面积:175M²

造价:

查看案例详情>>
滨瓯景园1-02杨姐雅居

滨瓯景园1-02杨姐雅居

风格:欧式风格

面积:180M²

造价:

查看案例详情>>
温迪锦园 24-07户型 黄女士雅居

温迪锦园 24-07户型 黄女士雅居

查看案例详情>>
南瓯嘉园 14-02 陈先生雅居

南瓯嘉园 14-02 陈先生雅居

查看案例详情>>
兴秀嘉园 7-02 黄女士雅居

兴秀嘉园 7-02 黄女士雅居

查看案例详情>>

在线客服

客服微信

自助报价

优惠政策

返回顶部