您当前位置 > 设计提案 > 东润景园黄先生雅居

东润景园黄先生雅居

夏海程

DESIGNER

夏海程

作品数:140从业时间:3

擅长风格:

实景案例

125套

360°案例

46套

在建工地

15套

好评率

100%
个人简介
【擅长风格】:现代简约
【代表作品】:聚欢家园、锦东家园、开源路圣丽亚戈服饰、铂金府邸,金域传奇,温州大公馆,御珑湾等
点击展开
找TA设计

原始户型

原始结构图

原始结构图

整体户型方正,采光、通风好,每个空间的利用率较高,承重墙少,可以改动的墙体格局也多

原始结构图

设计方案

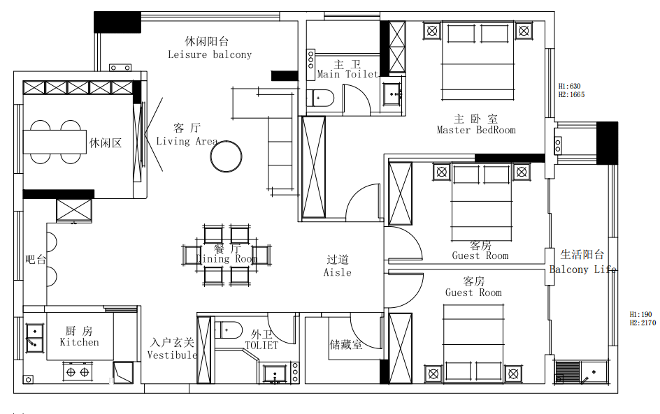
方案2

方案2

与方案一的区别在于在原来餐厅位置增加的吧台,冰箱放到了外面,餐桌放在了客厅旁边,其他空间设计与原方案差不多

方案1

方案1

本方案的特点在于将客厅与阳台打通,增大空间面积,使客厅看起来更加的大气通透,活动空间大,方便孩子娱乐玩耍,业主也希望外卫生间变大点,方便以后保姆或者老人能帮孩子洗澡,所以扩大了卫生间的空间面积,减少了储藏室的面积,同时在主卧门口设计了收纳柜,能够存储棉被等等,主卫生间向设备阳台外扩,也向主卧占了一点的空间,让主卫能够更好的使用

方案2
方案1

全景效果图

在线客服

客服微信

自助报价

优惠政策

返回顶部