您当前位置 > 设计提案 > 融创瓯玥名邸4-02设计提案 陈盛潺

融创瓯玥名邸4-02设计提案 陈盛潺

风格:现代面积:105

陈盛潺

DESIGNER

陈盛潺

作品数:29从业时间:5

擅长风格:现代简约、现代、新中式、现代轻奢、北欧

实景案例

27套

360°案例

19套

在建工地

2套

好评率

100%
个人简介
从业经验:5年
毕业院校:杭州长征学院
国家高级注册设计师
中国室内设计协会会员
【擅长风格】:黑白灰风格、现代简约、新中式、现代轻奢等
【代表作品】:融悦东方,十一峯,瓯府景苑,凤池佳苑,万象天地,国际新城,熙悦里等。
点击展开
找TA设计

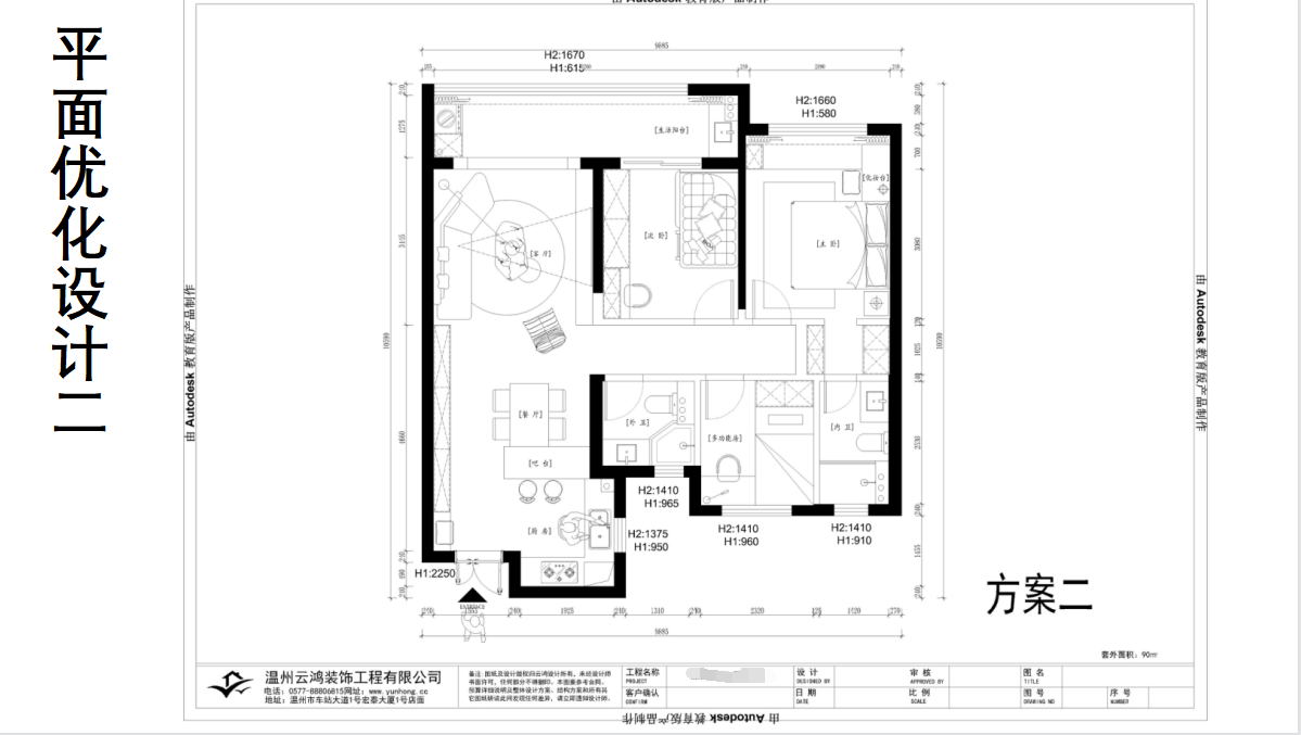
原始户型

#ff0000

#ff0000

#ff0000

设计方案

#ff0000

#ff0000

#ff0000

#ff0000

#ff0000

#ff0000

#ff0000
#ff0000
#ff0000

全景效果图

设计师关联案例

现代黑白灰风格-瓯府景园1704-全案设计师陈盛潺

现代黑白灰风格-瓯府景园1704-全案设计师陈盛潺

风格:现代

面积:110

查看案例详情>>
君悦3-9-法式风格-全案设计师陈盛潺

君悦3-9-法式风格-全案设计师陈盛潺

风格:法式

面积:160

查看案例详情>>
融悦东方9-02-现代极简风格-全案设计师陈盛潺

融悦东方9-02-现代极简风格-全案设计师陈盛潺

风格:现代

面积:180

查看案例详情>>
瓯府景苑13-02现代黑白灰简约风格-全案设计师陈盛潺

瓯府景苑13-02现代黑白灰简约风格-全案设计师陈盛潺

风格:现代

面积:135

查看案例详情>>
凤池佳苑1502-现代黑白灰风格-全案设计师陈盛潺

凤池佳苑1502-现代黑白灰风格-全案设计师陈盛潺

风格:现代

面积:170

查看案例详情>>

在线客服

客服微信

自助报价

优惠政策

返回顶部