您当前位置 > 设计提案 > 楼东景苑3-2404

楼东景苑3-2404

风格:现代简约面积:100造价:7万

任绍莱

DESIGNER

任绍莱

作品数:100从业时间:12年

擅长风格:现代简约、现代、新中式、现代轻奢、美式、欧式、现代主义

实景案例

85套

360°案例

22套

在建工地

15套

好评率

100%
个人简介
国家注册室内设计师
中国室内设计协会会员
全国住宅装饰装修行业优秀设计师
云鸿首席设计师称号
设计案例:大发凯旋门、同人欣园、七都江山邑、时代公寓、红日别墅、罗西住宅、中央公馆、永嘉别墅雅居、滨江首府、新希望天麓等...
荣誉奖励
家装家居产业2017年度风尚新秀设计人物
清华大学建筑与室内设计高级研修班进修
全国住宅装饰装修行业优秀设计师
点击展开
找TA设计

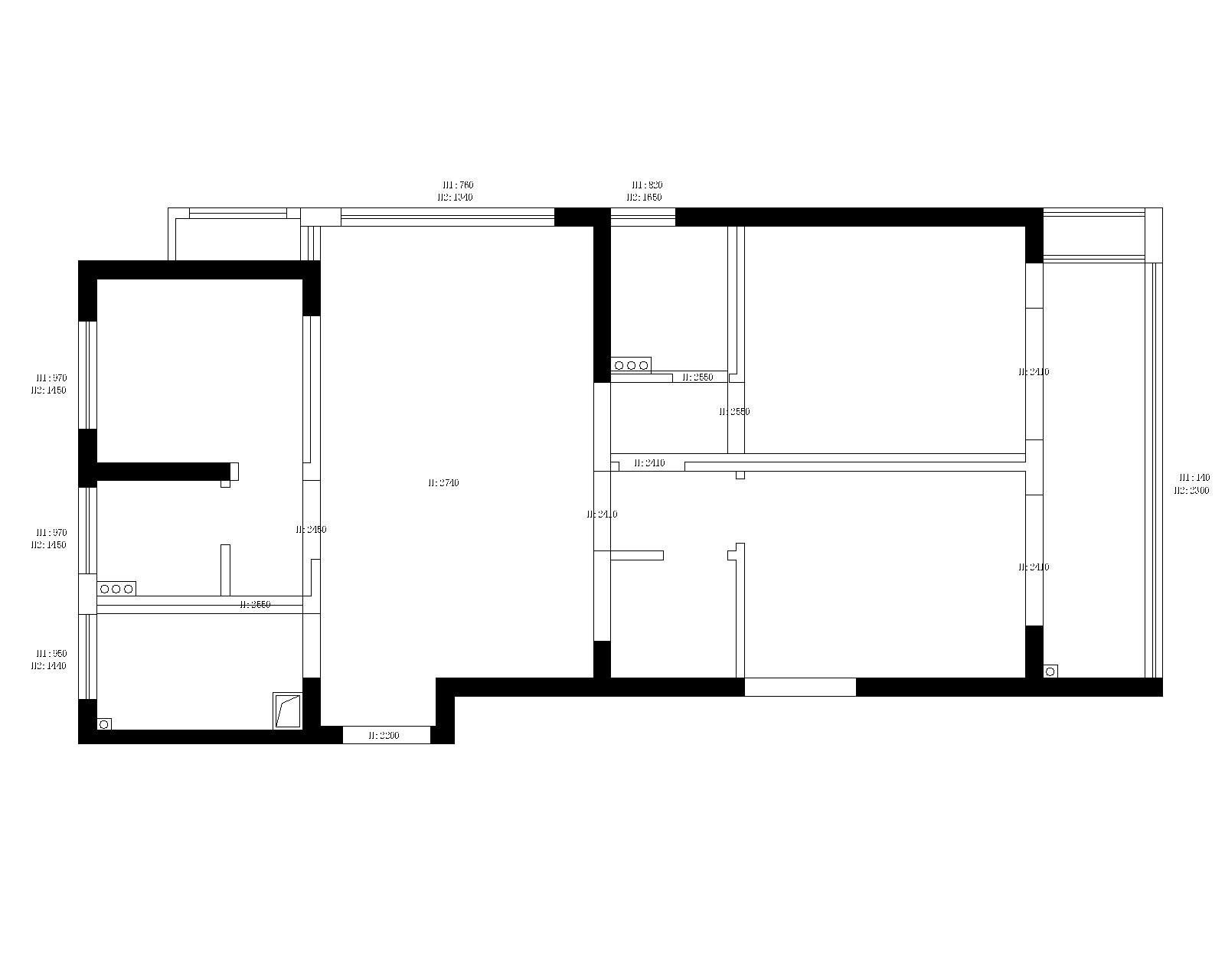
原始户型

原始户型图

原始户型图

原始户型图

设计方案

平面布置方案一

平面布置方案一

平面布置方案二

平面布置方案二

平面布置方案一
平面布置方案二

实景/参考图

客餐厅参考

客餐厅参考

客餐厅参考

客餐厅参考

厨房参考

厨房参考

卧室参考

卧室参考

卫生间参考

卫生间参考

客餐厅参考
客餐厅参考
厨房参考
卧室参考
卫生间参考

全景效果图

楼东景苑3-2404

设计师关联案例

新希望·天麓李姐雅居

新希望·天麓李姐雅居

风格:现代美式

面积:165

造价:70万

查看案例详情>>
德盛嘉园郑总雅居

德盛嘉园郑总雅居

风格:现代简约

面积:145

造价:40万

查看案例详情>>
国宾一号17-1505陈女士雅居

国宾一号17-1505陈女士雅居

面积:90

风格:现代轻奢

造价:6.5万

查看案例详情>>
白鹿城·香颂苑陈总雅居

白鹿城·香颂苑陈总雅居

风格:现代简约

面积:120

造价:24万

查看案例详情>>
雪山公寓B-502郑女士雅居

雪山公寓B-502郑女士雅居

风格:现代简约

面积:205

造价:85万

查看案例详情>>
华鸿时代·中央公园7-2402室

华鸿时代·中央公园7-2402室

风格:现代简约

面积:96平方

造价:6.7万

查看案例详情>>
楼东景苑3-2404

楼东景苑3-2404

风格:现代简约

面积:100

造价:7万

查看案例详情>>
江岸景苑

江岸景苑

风格:现代简约

面积:135

造价:35万

查看案例详情>>
瓯堡锦园陈总雅居

瓯堡锦园陈总雅居

风格:现代简约

面积:165

造价:75万

查看案例详情>>

在线客服

客服微信

自助报价

优惠政策

返回顶部