您当前位置 > 设计提案 > 大发融悦东方刘总雅居

大发融悦东方刘总雅居

风格:现代简约面积:98造价:10万

夏海程

DESIGNER

夏海程

作品数:140从业时间:3

擅长风格:

实景案例

125套

360°案例

46套

在建工地

15套

好评率

100%
个人简介
【擅长风格】:现代简约
【代表作品】:聚欢家园、锦东家园、开源路圣丽亚戈服饰、铂金府邸,金域传奇,温州大公馆,御珑湾等
点击展开
找TA设计

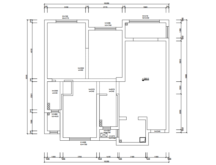
原始户型

原始户型图

原始户型图

整体户型通风光线因为有落地窗,所以整体效果好,业主希望做个干湿分离,做两个孩子房,其他空间按照基本常规排方案

原始户型图

设计方案

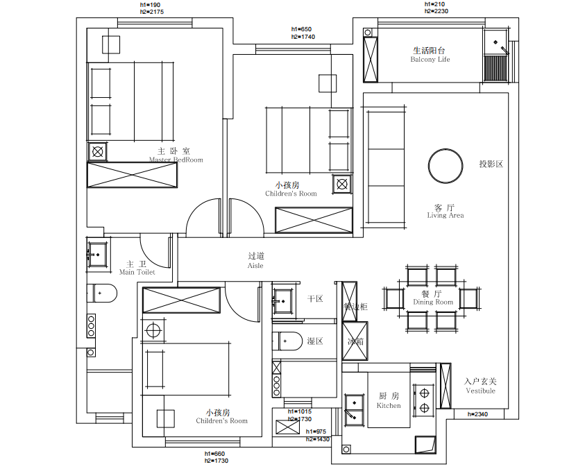
方案一

方案一

进户门左手鞋柜,客厅做投影区并与阳台相通,卫生间做干湿分离,做两个孩子房,都放置一张书桌,主卧1米8的床,旁边再摆放一张化妆桌。整体空间利用了起来

方案二

方案二

方案一
方案二

全景效果图

大发融悦东方刘总雅居

在线客服

客服微信

自助报价

优惠政策

返回顶部