装修案例
装修案例
设计提案
工地展示
搜索
0577-86069777
智能健康家装热线
首页
楼盘
案例
实景案例
全景案例
报价
设计范围
半包范围
全包范围
配套套餐
空间版预算
自助报价
优惠活动
设计
设计师
装修需求
设计风格
行业前沿
设计提案
施工
项目经理
施工工人
工地展示
工艺标准
辅材介绍
主材介绍
公司
关于云鸿
公司动态
联系我们
自助报价
首页
楼盘
案例
实景案例
全景案例
报价
设计范围
半包范围
全包范围
配套套餐
空间版预算
自助报价
优惠活动
设计
设计师
装修需求
设计风格
行业前沿
设计提案
施工
项目经理
施工工人
工地展示
工艺标准
辅材介绍
主材介绍
公司
关于云鸿
公司动态
联系我们
您当前位置
>
设计提案
>
万科新都会 郭先生雅居
万科新都会 郭先生雅居
DESIGNER
叶陈斌
作品数:
69
套
从业时间:
5年
擅长风格:
实景案例
60套
360°案例
21套
在建工地
9套
好评率
100%
个人简介
叶陈斌- 温州 - 温州云鸿装饰 从业经验:5年 案例作品:10套毕业院校:西北工业大学土木工程国家注册室内高级设计师中国建筑装饰协会会员配饰一级设计师【代表作品】:温州悦府,滨江壹号,白麓城,首府壹号,天麓,景都华庭,万科时代中心,万象天地,德信时代公园,望都景苑,海派公馆,鹿城公馆,碧桂园翡翠郡,鹿锦西园,祥生尚品,鹿城大院,融悦东方,龙湾大院,华鸿万墅,尚品半岛,鸿锦嘉园等。 【代表作品】:温州悦府,滨江壹号,白麓城,首府壹号,天麓,景都华庭,万科时代中心,万象天地,德信时代公园,望都景苑,海派公馆,鹿城公馆,碧桂园翡翠郡,鹿锦西园,祥生尚品,鹿城大院,融悦东方,龙湾大院,华鸿万墅,尚品半岛,鸿锦嘉园等。
点击展开
找TA设计
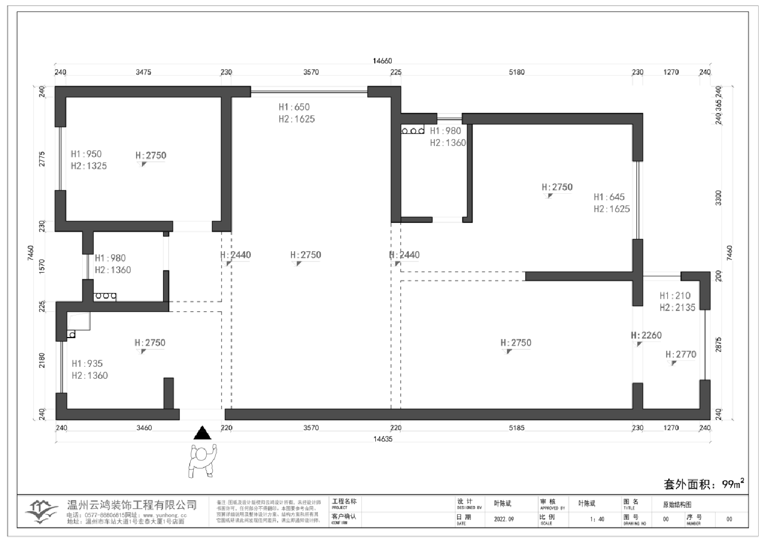
原始户型
万科新都会3-01原始结构图
设计方案
万科新都会方案
实景/参考图
全景效果图
设计师关联案例
下吕浦书声组团 周先生雅居
预约Ta
设计师:叶陈斌
查看案例详情>>
京都府 余先生雅居
预约Ta
设计师:叶陈斌
查看案例详情>>
新希望天麓 叶先生雅居
预约Ta
设计师:叶陈斌
查看案例详情>>
百景嘉园林先生雅居
预约Ta
设计师:叶陈斌
查看案例详情>>
滨月轩一组团王女士雅居
预约Ta
设计师:叶陈斌
查看案例详情>>
温州奥体城 李女士雅居
预约Ta
设计师:叶陈斌
查看案例详情>>
乐清正大城 叶先生雅居
预约Ta
设计师:叶陈斌
查看案例详情>>
新希望 白麓城 石先生雅居
预约Ta
设计师:叶陈斌
查看案例详情>>
龙湾首府 李女士雅居
预约Ta
设计师:叶陈斌
查看案例详情>>
在线客服
客服微信
自助报价
优惠政策
返回顶部