您当前位置 > 设计提案 > 大士门大厦1

大士门大厦1

待定

DESIGNER

待定

作品数:7从业时间:

擅长风格:

实景案例

4套

360°案例

0套

在建工地

3套

好评率

100%
个人简介
点击展开
找TA设计

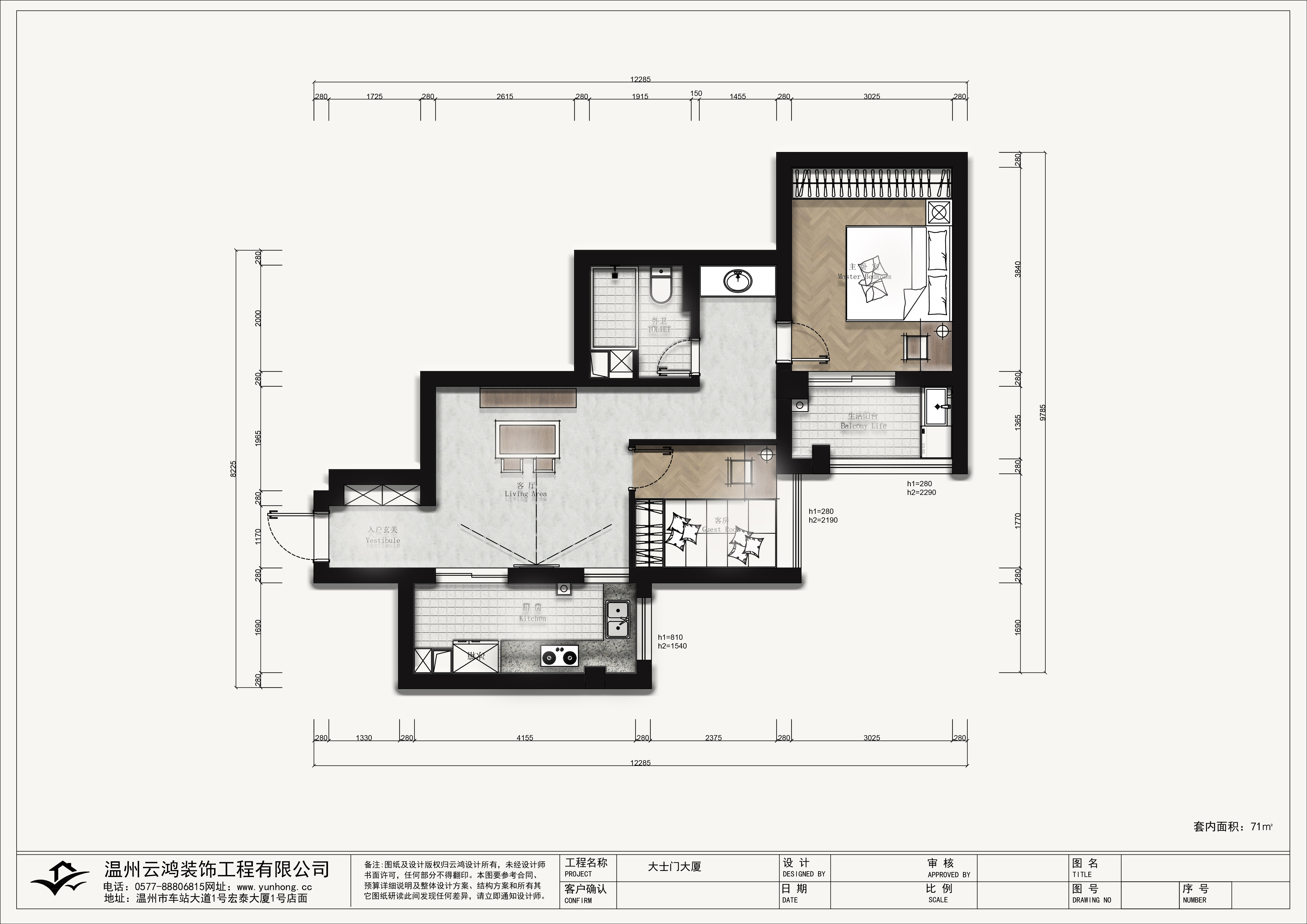
原始户型

#ff0000

#ff0000

优点:厨房空间大,过道宽
缺点:采光不强,南北不通透,

#ff0000

设计方案

#ff0000

#ff0000

在客餐厅隔出一个房间,卫生间干湿分离,
厨房双开门冰箱,餐厅放卡座,次卧做榻榻米或沙发床

#ff0000

#ff0000

客餐厅放小沙发和餐桌,主卧房门换位置,衣帽间,卫生间不干湿分离

#ff0000
#ff0000

实景/参考图

全景效果图

大士门大厦1

设计师关联案例

美式家装卧室装修

美式家装卧室装修

查看案例详情>>
现代风格装潢设计餐厅效果图

现代风格装潢设计餐厅效果图

查看案例详情>>
城市之星-舒适自然和谐-简欧192平

城市之星-舒适自然和谐-简欧192平

查看案例详情>>

在线客服

客服微信

自助报价

优惠政策

返回顶部