您当前位置 > 案例 > 龙誉城王先生雅居

龙誉城王先生雅居

风格:现代面积:90造价:7万

戴晶屿洋

DESIGNER

戴晶屿洋

作品数:46从业时间:5

擅长风格:现代简约、现代、现代轻奢、美式、法式、意式风

实景案例

45套

360°案例

22套

在建工地

1套

好评率

100%
个人简介
【擅长风格】:现代轻奢、意式极简、轻奢法式,复古美式,现代简约
【曾获荣誉】:室内设计师资格证
ACAA认证平面设计师
【代表作品】:江岸锦园,鹿岛万象天地,鹿岛甲第,中梁旭辉国宾府,多弗奥林匹克,锦延家园,德信时代公园,德信府前壹号,豪盛花园,华欧家园,华韵家园,江前里悦庭,瓯海之光,学院十一峯,万科中梁新都会,华鸿万府,悦丰家园
点击展开
找TA设计

原始户型

原始结构图

原始结构图

业主需要两个房间,内卫不需要。只要一个三分离外卫就可以。厨房可以接受开放式厨房

原始结构图

设计方案

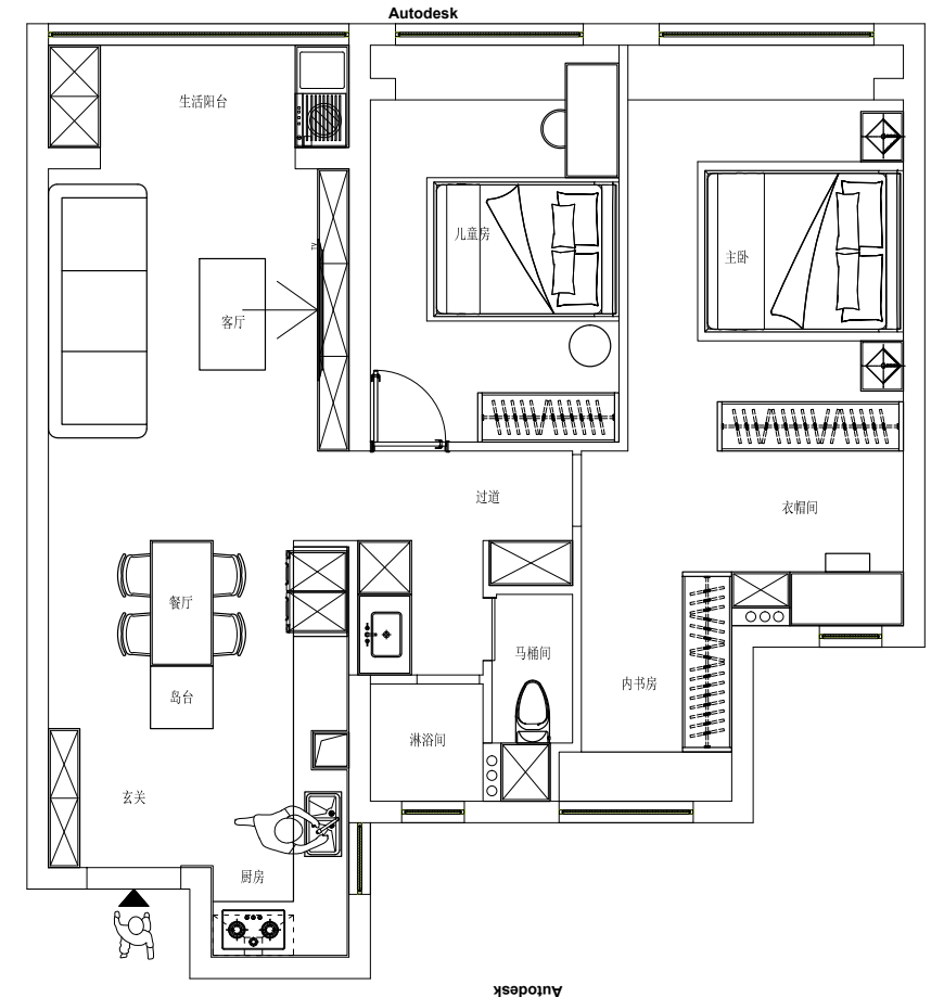
方案1

方案1

设计一组入户玄关,增加了鞋柜的收纳。厨房设计成开放式厨房。外卫设计成封闭式三分离卫生间。主卧设计了功能分区。

方案2

方案2

设计成开放式厨房,餐桌增加一组岛台功能。外卫设计成开放式独立的三分离卫生间。主卧增加了一组衣柜,增大收纳空间。

方案1
方案2

全景效果图

设计师关联案例

京都城6-03黄先生雅居

京都城6-03黄先生雅居

风格:现代风格

面积:190M²

造价:

查看案例详情>>
大发凯旋门15幢06龙总

大发凯旋门15幢06龙总

风格:欧式风格

面积:125M²

造价:

查看案例详情>>
一品国际2幢04陈总

一品国际2幢04陈总

风格:欧式风格

面积:102M²

造价:

查看案例详情>>
芳景大厦6幢04林女士

芳景大厦6幢04林女士

风格:欧式风格

面积:106M²

造价:

查看案例详情>>
公园天下7幢01陈先生

公园天下7幢01陈先生

风格:美式风格

面积:124M²

造价:

查看案例详情>>
温迪锦园5-04雅居

温迪锦园5-04雅居

风格:现代风格

面积:

造价:

查看案例详情>>
白麓城紫玉庭5-04郑女士雅居

白麓城紫玉庭5-04郑女士雅居

风格:美式风格

面积:174M²

造价:

查看案例详情>>
四季原著18-602李先生雅居

四季原著18-602李先生雅居

风格:现代风格

面积:93M²

造价:

查看案例详情>>

在线客服

客服微信

自助报价

优惠政策

返回顶部